My husband went back to Green Element Resale to pay and donate, and even brought home both end tables! We will go back for the other furniture pieces in the next few days.
Here are my top 2 Interior Ideas:
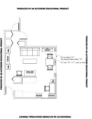
This plan creates the look of a built-in book shelf on the left wall. The small hutch gives us a place to set our keys and my purse when we walk in. The work space is separated from the entertainment area, and the dining table is centered on the window. The keyboard is available, though not a focal point, and has easy access for a seat.
This plan creates some formality in the space with the end tables flanking the existing book case. This trio also balances the window on the opposite wall. Now, the second book case gives extra storage in our work space- which is great for all of our text books. Plus, the hutch can be used for our new Ninja Blender and some odds n' ends. The end table closest to the entry still gives us a place to set our keys- phew!


I carried those end tables for 5 blocks in one trip. I had many strangers stare and comment at me when I passed them by. Majority of the comments asked how far I had to go. None seemed equal to the task after I answered.
ReplyDeleteI was over dressed for this assignment and was sweating buckets by the time I was half way.
Has she mentioned the grand piano yet?
ReplyDeleteFunny you should say that........ I did find an upright at the thrift store the other day, but it was horribly out of tune and in bad shape. My keyboard will have to suffice for now :)
Delete